GARIBALDI HÁZ REVITALIZÁCIÓ

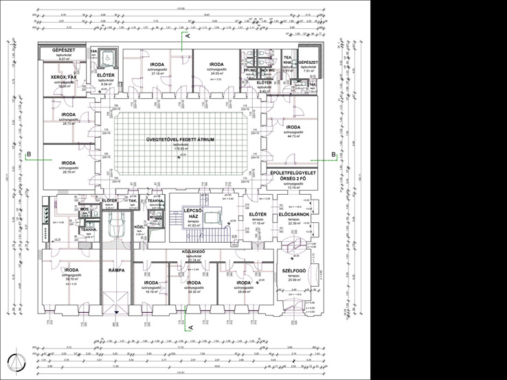
A GARIBALDI UTCA 4 SZÁM ALATTI HÁROMEMELETES EKLEKTIKUS MŰEMLÉKI ÉPÜLET AZ UNESCO VILÁGÖRÖKSÉGI VÉDETT TERÜLETÉN VAN. AZ ÜRESEN ÁLLÓ LEROM- LOTT ÁLLAPOTÚ ÉPÜLET ÉPÍTÉSI ENGE- DÉLYEZÉSI TERVÉT 1999-BEN KÉSZÍTETTÜK EL, TETŐTÉRBEÉPÍTÉSSEL TÚLNYOMÓRÉSZT IRODAI CÉLÚ HASZNÁLATRA, A BELSŐ UDVAR ÜVEGFEDÉSÉVEL. A BELSŐ ÁTRIUM KIALAKÍTÁSA LEHETŐVÉ TETTE A KORHŰ MŰEMLÉKI FÜGGŐFOLYOSÓ RENDSZER HELYREÁLLÍTÁSÁT. AZ ÉPÍTÉSI ENGEDÉLYT 2000-BEN ADTA KI AZ ÉPÍTÉSÜGYI HATÓSÁG. MEGRENDELŐNK AZ ÉPÍTÉSI ENGEDÉLY BIRTOKÁBAN ÉRTÉKESÍTETTE AZ INGATLANT. AZ ÚJ TULAJDONOS 2008-BAN ADTA ÁT AZ ÉPÜLETET TÚLNYOMÓRÉSZT LUXUS LA- KÁSOKAT MEGVALÓSÍTVA.